top of page
Out of gallery
Property Description
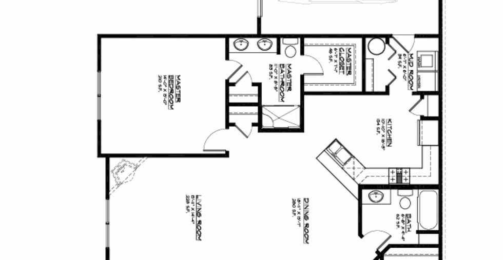
Currently in progress, this home offers the opportunity to customize interior finishes to match your style and needs. Designed for low-maintenance living with the comfort of a single-family home, it features an open-concept layout, quality craftsmanship, and access to nearby amenities. This villa includes two bedrooms and a third room that can be designed as a home office or converted into a third bedroom—giving you flexibility to fit your lifestyle.
Take advantage of the chance to shape your future home in a welcoming, community-focused setting!
Contact Agent
Steve Likas
219-306-3070
Property Details
Property Type
Villa
Bedrooms
3
Bathrooms
2
Size
1,728 sqft
Floors
1
Year Built
Property Location
Yorktown, IN, USA
bottom of page


